生産性の向上を目指して建築された。テント倉庫25.0m×26.0m
計画・実施設計

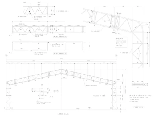
①地域の積雪量や風速に配慮し、過剰ではないが十分な強度を持つ軽量鉄骨のサイズと配置を決定します。これにより、従来の倉庫よりも資材コストと工期を大幅に削減しながら、建築基準法を満たす
高い安全性を確保します。
②鉄骨の部材を規格化・モジュール化することで、
現場での加工を極力抑え、
工場製作の精度を最大化します。これが後の建て方工事の
驚異的なスピードを生み出す設計上の鍵となります。
③敷地境界線からの距離、建ぺい率、容積率、そして消防法など、すべての法規をクリアした上で、最適な搬入・搬出経路(シャッター位置など)を計画します。
型枠・鉄筋工事

①精密な墨出し(位置出し)設計図に基づいて、基礎の正確な位置をミリ単位で床に記す作業です。
この精度が、上部構造の歪みを防ぎます。アンカーボルトの緊張結基礎コンクリートに据え付けるアンカーボルトは、軽量鉄骨の柱と基礎を強固に結び生命線です。
②鉄筋の結束とスペーサー鉄筋を設計通りに配置し、結束線で強固に固定します。 また、鉄筋が型枠に接触しないように、適切なかぶり厚(コンクリートの被り厚)を確保するためにスパーサーを設置します
基礎コンクリート工事

①コンクリートの打設と均しポンプ車を使い、生コンクリートを型枠の隅々まで行き渡らせます。 流し込み後は、バイブレーターで振動を与え、内部の気泡を取り除き、コンクリートの密度と強度を高めます。養生期間の確保コンクリートが設計通りの強度(圧縮強度)を発現するためには、適切な温度と湿度の管理(養生)が必要です。この期間を確実に確保することで、基礎は長期にわたって沈下やひび割れに対抗できる強靭な体質を獲得します。基礎の種類地盤の状況や倉庫の用途に応じて、柱ごとに独立した基礎、外周を連続した梁で繋ぐ布基礎、床全体を覆うベタ基礎など、最適な基礎形式をとしています。
基礎コンクリート工事

①地上で組み付けられた大梁や柱のようなメインフレームを、ラフタークレーンで吊り上げ、基礎のアンカーボルトにボルト接合します。このスピード施工こそがテント倉庫の代名詞であり、現場での作業時間を大幅に短縮し、工期を革命的に短縮します。
②柱と梁の接合部には、高い強度を持つ高力ボルトを使用し、強力なトルク(締め付け力)で一体化させます。これにより、地震や強風時の揺れに対して、鉄骨組が変形しにくい強靭な構造体となります。垂直と水平の確保柱の傾き(鉛直)や梁の水平を、トランシットなどの測量機器を用いて確認し、調整用のボルトや控えを用いて正確に位置を固定します。これにより、後のシート張り作業をスムーズに、建物の安全性が保証されます。
テントシート張り方工事

①シートの一体縫製と搬入屋根や壁となる膜材は、工場で一枚の巨大なシートとして溶着・縫製され、現場に搬入されます。これにより、現場の作業をスピーディーに施工することを可能としています。
②巨大なシートをクレーンで屋根の上まで吊り上げ、棟(建物の最も高い部分)から側面に沿って広げていきます。その後、シート全体に適切なテンション(張力)を与えます。シワのない美しさと雨仕舞をこのテンション調整が最も技術が必要になる部分です。適切な張力を考慮することで、風によるバタつきを防止します。また、シートと鉄骨、扉など、すべての接合部で水の侵入を防ぐ雨仕舞処理を施し、長期にわたって防水性を確保します。
テント倉庫完成

①完了検査と検査済証の取得建設した建物が設計図通りであり、建築基準法などの関係法令に適合しているのか、行政または指定検査機関が厳しくチェックします。この**「検査済証」の取得により、建物は正式に利用が許可されます。
高耐久・低メンテナンス性構造がシンプルかつ軽量であるため、従来の建築物と比較して初期投資が低く、**ランニングコスト(維持費)**も抑えられます。テントシートも高い耐久性を持つため、長期的には低コストで運用可能です。ビジネスの迅速な立ち上げ計画から完了・引き渡しまでの期間が短いため、市場の変化や急な事業拡大にも迅速に対応できます。これにより、機会損失を防ぎ、お客様のビジネスに圧倒的な競争優位性をもたらします。